Строительство дачных домов
Строительство дачных домов
Своя дача — это мечта для многих жителей крупных городов и мегаполисов. Выбор дачного дома, это большая ответственность, ведь Вы определяетесь с будущем своего свободного времени, которое любой человек хочет провести в комфорте и уюте.

Если у Вас совершенно нет времени, но очень хочется свой собственный загородный особняк, то каркасные дачные дома под ключ по недорогой цене наилучший способ заполучить желаемое.

Главное преимущество такого коттеджа заключается в том, что за его строительством не нужно следить (настоящий рай для заказчика). Достаточно выбрать проект в компании «СК Частный Дом», а все остальное сделают ответственные сотрудники этой компании.
В наши услуги по строительству модульных домов входит:
Планирование на участке, обустройство фундамента
Монтаж основы каркаса и секций строения
Установка кровли, водосточной системы
Прокладывание коммуникационных трасс
01
02
03
04
Закрепление утеплителя, пароизоляции
Укладка лаг, настил полов, монтаж потолков
Монтирование окон и дверей
Внутренняя и внешняя отделка и другое
05
06
07
08
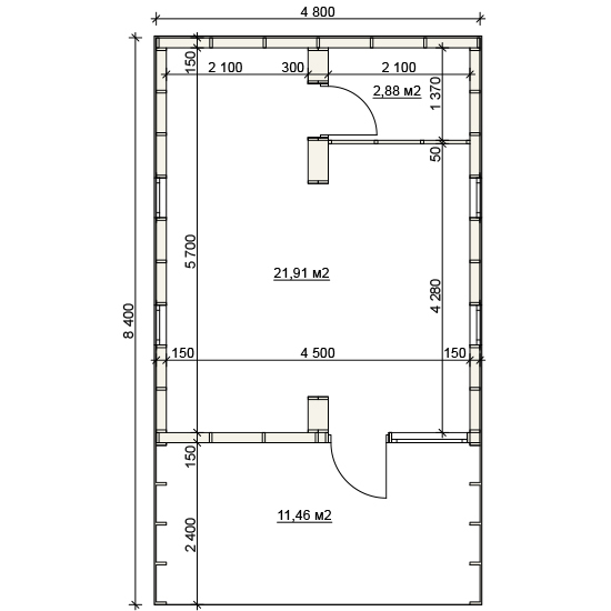
Проекты домов
ПРОЕКТ ДВУХЭТАЖНОГО ДОМА
ПРОЕКТ ОДНОЭТАЖНОГО ДОМА
В последнее время спрос на строительство модульных домов стремительно возрос и тому есть веские причины:
01
02
05
04
03
Легкий вес строений
Быстрота возведения
Эстетичный внешний вид
Долговечность эксплуатации
Хорошие звуко - и теплоизоляционные качества
Оставьте заявку
Нажимая на кнопку «Отправить», вы даете согласие на обработку персональных данных
Контакты:
+7-(910)-308-84-60
E-mail: chastnii18@yandex.ru
Время работы:

Пн-Пт 9:00 — 18:00, суббота и воскресенье — по согласованию.

Перед приходом в офис просьба связаться с менеджером по тел +7 (910) 308-84-60

Компания
Контакты
г. Орёл, Орловская обл., 302026
ул. Городская, 28А,
Телефон:

8 (4862) 488-460
8-(910)-308-84-60

E-mail: chastnii18@yandex.ru

This site was made on Tilda — a website builder that helps to create a website without any code
Create a website